热烈祝贺森尼陶瓷与陕西青年职业学院达成战略合作
2021-05-11    阅读人数:3810

在这个草长莺飞

到处散发出夏日清爽的美好季节

佳音频传

森尼陶瓷与陕西青年职业学院达成战略合作

 

 

陕西青年职业学院(陕西省团校)新校区位于西安市长安区常宁新区。总用地面积约395总建筑面积约26万平方米主要建设教学楼、实验实训楼、图书馆、体育馆、学生宿舍、食堂、后勤等校舍及相关配套设施,可满足约8000名学生在校生学习生活。





陕西青年职业学院(陕西省团校)新校区项目瓷砖全部采用森尼陶瓷,面积约26万平方米。此次项目的合作,从产品质量、生产能力、供货保障、售后服务等方面突出品牌的优势,展现出森尼陶瓷品牌的综合实力


品牌实力
Brand strength


森尼陶瓷隶属广东顺成陶瓷集团,旗下拥有三大现代化生产基地占地面积约4000亩,工厂40条大型现代化陶瓷生产线,日产能约40万平方米。
 
生产基地拥有行业内最大的原料储存仓,可以容纳基地180天周转存储,充分展现顺成陶瓷集团的资金实力。从产品原料到产品成品每一道工序都严格按照国家标准检测。

佛山高明生产基地

全封闭原料储存仓


780米长窑炉

森尼陶瓷立足于佛山本土,依托顺成陶瓷集团强大的后盾,在岁月的长河中,稳步前行。凭借过硬的产品生产实力及技术,摘得"陶瓷十大品牌”、“陶瓷一线品牌”荣誉。

◆陶瓷十大品牌


◆陶瓷一线品牌



产品研发力
Product R&D capability

森尼陶瓷秉承设计融合生活,从生活中发现设计的元素,将敏锐的时尚视觉运用到产品中。森尼陶瓷拥有近8000方研发技术中心,拥有众多专家人士,从原料检测到成品检测,历经12道检测工序

佛山高明科研中心

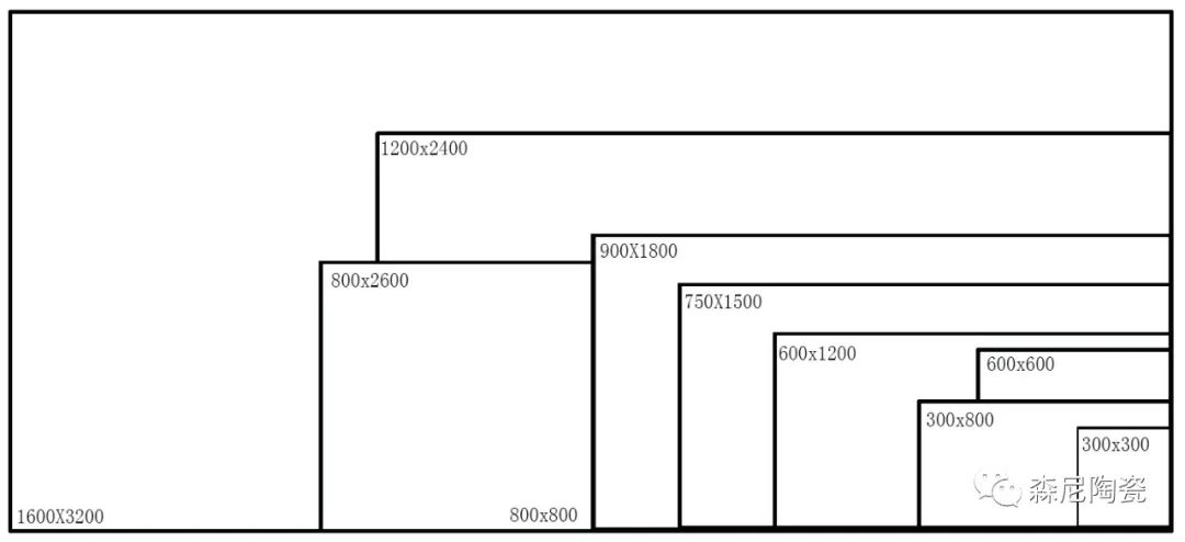
森尼产品品类多,涵盖岩板、大板、大理石瓷砖、瓷抛砖、通体砖、仿古砖、抛光砖、内墙砖等七大类主流产品。森尼产品品类齐全,产品尺寸从1600X3200mm大板至15X15mm花岗岩等规格一应俱全,产品花色丰富、应用范围广。

 
森尼陶瓷将原创进行到底,自主研发高性能炻质砖,集行业领先技术于一体的新一代内墙砖,具有破坏强度、断裂模数、抗釉裂性、抗热震性、吸水率等多方面性能突出的优势,经行业相关专家学者鉴定为“国际先进水平”

科技成果鉴定会


工程优选
Engineering optimization


相信品牌的力量,源自背后夜以继日的坚持与不凡的成就。森尼陶瓷在产品创新、服务创新、渠道拓宽、营销推广、形象展示等全方位进行品牌立体升级,一直坚持高品质高价值好服务有担当。强大的综合实力不仅得到家装用户的好评,更得到工程用户的青睐,工程项目遍布星级酒店、学校医院、高档住宅等等。森尼陶瓷在众多品牌中凭借着品牌的综合实力,工程用户的满意度,脱颖而出获得"工程建设推荐品牌”。


◆工程建设推荐品牌


◆部分工程案例


每一步的脚踏实地,每一次的精益求精,每一次的不断超越,成就更加完美的森尼陶瓷。在未来,森尼陶瓷将会以更加出色的产品与服务赢得更多客户得信赖,一起携手奔赴更加灿烂的星辰大海!


END



品牌动态
01品牌动态
新品上市
02新品上市
促销专题
03促销专题
品牌视频
04品牌视频
分享
0757-82522215
森尼学院     copyright © 2024 森尼陶瓷 粤ICP备2021007637号    百度统计    工作台     技术支持:极速光标       粤公网安备 44060402001193号
友情链接 岩板一线品牌 现代侘寂风 陶瓷一线品牌 特色瓷砖